Nymburk získal státní příspěvek na stavbu lávky přes plavební komoru ve výši 22,5 milionu korun. Stát by měla ještě letos
NYMBURK – Město Nymburk získalo od Státního fondu dopravní infrastruktury příspěvek 22,5 milionu korun na výstavbu bezbariérového přechodu přes plavební komoru na Labi. Pomohla skutečnost, že původní hlavní lávka přes řeku musela být loni stržena a také přímá intervence u ministra dopravy Kremlíka. Pokud se podaří rychle vybrat stavebníka, nový přechod přes zdymadlo by měl být hotov ještě letos.

Zákres nového přemostění plavební komoru v Nymburce
Lávka pro pěší přes plavební komoru na Labi v Nymburce je dlouhodobou bariérou v překonání řeky. Nyní je to bohužel téměř jediná možnost, jak se pěšky dostat ze sportovně a rekreačně velmi využívaného Ostrova a městské části Zálabí do centra Nymburka. Hlavní lávka přes Labe byla z důvodů možného zřícení stržena přesně před rokem a nová se začne stavět možná za rok. Přes hlavní kamenný most pěší nesmí a železniční přemostění přes Labe je mimo hlavní proud chodců. Nyní by tato bariéra v podobě schodišť na lávce přes plavební komoru mohla konečně zmizet. Město má projektovou dokumentaci, stavební povolení a od státu přiklepnutou částku 22,5 milionu korun na realizaci stavby. Zbývá už jen vybrat firmu, která uvede výkresy projekční kanceláře v reálnou podobu. Podle starosty Nymburka Tomáše Macha by se to mělo povést ještě letos.

Místo problematického přemostění přes plavební komoru
Současná a doufejme již dosluhující lávka přes zdymadlo celou svoji existenci působila jako provizorní. Prudké stoupaní a klesání po schodech z ocelových roštů nebylo komfortní ani pro pěší, natož pro cyklisty a psy. Loni se podařilo, dnes již bývalému vedení města, hlavně ale Nymburským demokratům, alespoň částečně zlepšit kvalitu a bezpečí přechodu. Ostatně výsledek je vidět v jejich loňském předvolebním videu.
Právě lídr Nymburským demokratů a bývalý místostarosta Jan Ritter se problematikou lávky přes plavební komoru dlouhodobě zabýval. “V podstatě hned, jak jsem přišel na radnici, tak jsem se o to zajímal. Preferoval jsem myšlenku otočné nebo jinak pohyblivé lávky, protože jsem se domníval, že stabilní konstrukce s estakádou se do toho prostoru nemůže vejít. Ovšem po konzultacích s inženýrem Hvízdalem z firmy Pontex jsme se rozhodli, že to zkusíme,” řekl Jan Ritter. A výslednou projektovou dokumentaci právě od renomované společnosti Pontex má město Nymburk k dispozici.
Ostatně o zvihacím mechanismu lávky hovořil i někdejší starosta Nymburka a nyní radní a vicehejtman Miloš Petera. “Svisle zdvižná varianta lávky naváže na dnešní trasu. Bude umístěna v ose dnešní lávky, bude zapuštěna do plata komory, a zajistí tak plně bezbariérový přístup bez nutnosti nájezdových ramp,” uvedl v roce 2011 Petera s tím, že stavba přijde na 8 milionů korun.
Varianta jakkoliv pohyblivého mechanismu je ale značně problematická. Jednak v samotné složitosti, ale hlavně nutné uzavírky přechodu po dobu proplavení lodi komorou. To trvá přibližně 20 minut a přestože je nyní provoz na Labi spíše raritou, v blízké budoucnosti by se měl podstatně zintenzivnit.

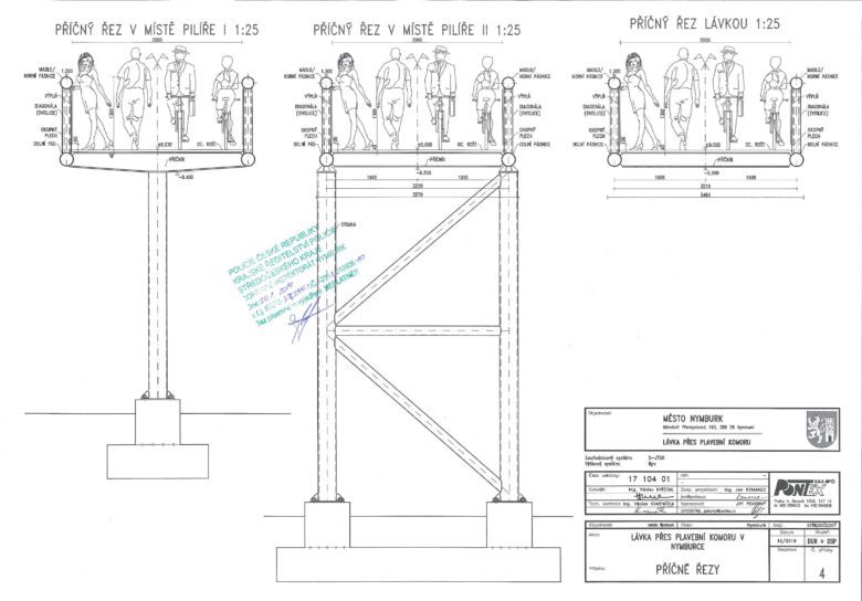
Řez lávkou podle projektové dokumentace
Zastavme se u ceny. V roce 2011 mluvil tehdejší starosta Nymburka Miloš Petera o osmi milionech za složitou zdvihací lávku. Aktuálně připravený projekt od společnosti Pontex je rozpočtován na 13,5 milionu bez DPH a to se jedná o stabilní konstrukci. Jenže za tuto cenu lávku nikdo stavět nechce. První veřejná zakázka z letošního června na dodání díla byla zrušena, protože nabídka od stavebníka byla na zhruba dvojnásobek částky. Nyní má město k dispozici 22,5 milionu korun a do toho by se mělo vejít.

Vizualizace nové lávky
“Podařilo se nám získat výrazný příspěvek na stavbu bezbariérové lávky přes plavební komoru od Státního fondu dopravní infrastruktury a to ve výši 22,5 milionu korun. Předpokládám, že za tuto částku už se stavebník najde a celé dílo tak bude ze sta procent kryto státními penězi. Výrazně pomohla přímá návštěva u ministra dopravy Vladimíra Kremlíka, který uznal naše argumenty, že v tuto chvíli nemáme v Nymburce bezbariérový přechod pro pěší přes Labe,” uvedl starosta Tomáš Mach.
Podle starosty by nová lávka přes zdymadlo měla být hotová ještě letos. Pochopitelně rozhodující bude, jak rychle se podaří najít stavební firmu. Peníze připravené jsou.
Josef Podolák







